Schools

Archimatika has extensive experience in designing schools, and all the projects shown below are located in Kyiv. A Norwegian pupil would likely feel just as much at home in these schools as in a typical Norwegian one.

The practical needs of pupils, students, and teachers form the foundation for school design, but equally important is the creation of an environment that fosters well-being for both young and old — an environment conducive to learning.

This allows teachers to focus on their primary task in the classroom: Inspiring curiosity and a thirst for knowledge.

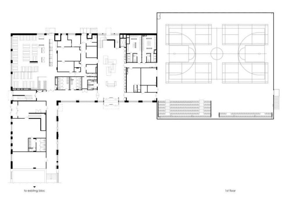
Gymnasium A+   The school has around 600 students, and it is part of the  educational institutions in the residential complex Comfort Town. It has a gross area of 8330 m2  and was completed in 2018. Location: Kyiv, 14 Berezneva St

Pechersk School International   The school has around 500 students from more than 40 countries. It has a gross area of 6530 m2  and was completed in 2017.   Location: Kyiv, 7a Zabily St          

Obolon International School   Concept study in 2018-2020 for a school with 700 students and a gross area of 10.250 m2. Location: Kyiv, 10-V Heroyiv Stalinhrada Ave