Building Applications

The responsible applicant serves as the key link between a project and the municipality during the application process. Archimatika manages all stages, from initial discussions in a preliminary conference (forhåndskonferanse), through applications for general permission (rammetillatelse) and work-start permission (igangsettingstillatelse), to filing for provisional permission (midlertidig brukstillatelse) and the certificate of completion (ferdigattest).

Applications for new buildings are the most common assignment, but Archimatika also has extensive experience with applications for changes of use (bruksendring), dispensations, and more. We have been awarded local approval (lokal godkjenning) in project classes (tiltaksklasse) 1–3.

Since 2019 we have acted as responsible applicant in the following projects:

  • Ryenstubben 2, Oslo: Application for change of use from an assembly hall to a Kiwi grocery store.
  • Årvoldveien 95, Moss: Årvold Conference Center – complete application process for the realization of a midsize conference center with appr. 4950 m2 BRA.
  • Ravnsborgveien 18, Asker: Application for general permission for a project with 19 detached houses.
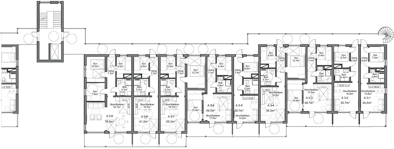
  • Fridtjof Nansen Plass 8 Oslo: Application for permission after realization of the project.
  • Torget 2, Sarpsborg: Application for change of use from service to commercial activities.
  • Pollfoss, Skjåk: Application for general permission for a yard with cottages.
  • Jomfru Møllers vei 12, Vestby: Complete application process for the realization of a project with 10 detached houses.
  • Festningsåsen 4, Aurskog-Høland:  Among other – application for a general permission for a housing project with 70 units and an application for dispensation prior to a general permission.
  • Sonsveien 105, Vestby: Application for dispensation from usage.

Ravnsborgveien 18 in the municipality of Asker - 14 terraced houses and 5 semi-detached houses. The general permit was awarded 21.04.2021, see reference S21/1007.

Årvoldveien in the municipality of Moss - a midsize conference center with a gross area of appr. 5000 m2. The general permit was awarded 3.11.2023, and construction work is due to be finished in Q2 of 2025.

This is the same project as the one above, but in a previous version that was awarded a building permit in November 2019. The project had to be downsized, and this shows Archimatikas flexible approach to planning.

Jomfru Møllers vei 12 in the municipality of Vestby - 10 detached houses. The building permit was awarded 21.5.2024. Construction work is due to be finished in Q2 2025.

Pollfoss in the municipality of Skjåk. This special project consists of 3 old buildings that will be set up as a courtyard at Pollfoss after having being moved from the previous location at Snarøya. The buildings will be used for different purposes in the community as well as a typical unmanned cottage by The Norwegian Trekking Association (DNT).

Application for general permission for a housing project with 70 units in Festningsåsen 4 in the municipality of Aurskog Høland. The permission was granted in September 2025. The project was designed for construction with prefabricated modules from the firm Kodumaja in Estonia.