Construction Planning

Archimatika manages all tasks within the field of responsible designer (prosjekterende for arkitektur). A project’s complexity — both in an architectural and a technical sense — and, not least, the client’s ambitions for the project serve as the basis for allocating manpower and expertise. This is then aligned and coordinated with the client’s expectations regarding timeline and costs.

Our approach is based on a step-by-step completion of drawings, adapted to major milestones in the construction process. In this way, drawings evolve as active documents through successive levels of completion. Tailoring the system to each project is key, with complex projects requiring more meticulous planning than simpler ones. Significant decisions receive more focus than less critical ones, and Archimatika has a strong understanding of interdependencies and the optimal timing for addressing key design and construction tasks in collaboration with the technical engineers in the planning team.

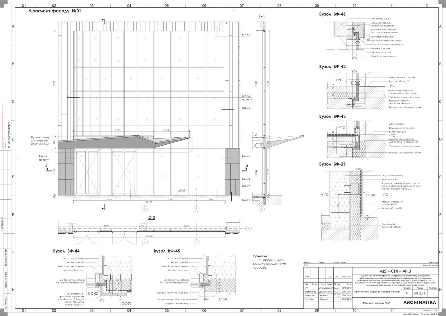
Ukraine and Norway have different technical standards in the building industry, yet construction drawings for a building site in Kyiv and Oslo are not so different. Similar rules and principles must be applied in both cases to ensure high-quality details from both a design and a technical perspective.

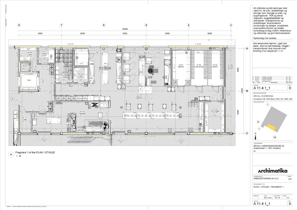
Årvoll conference center in the municipality of Moss. The construction work started up in 2023 and is due to be completed in Q2 2025.

The project at the official opening in May 2025.

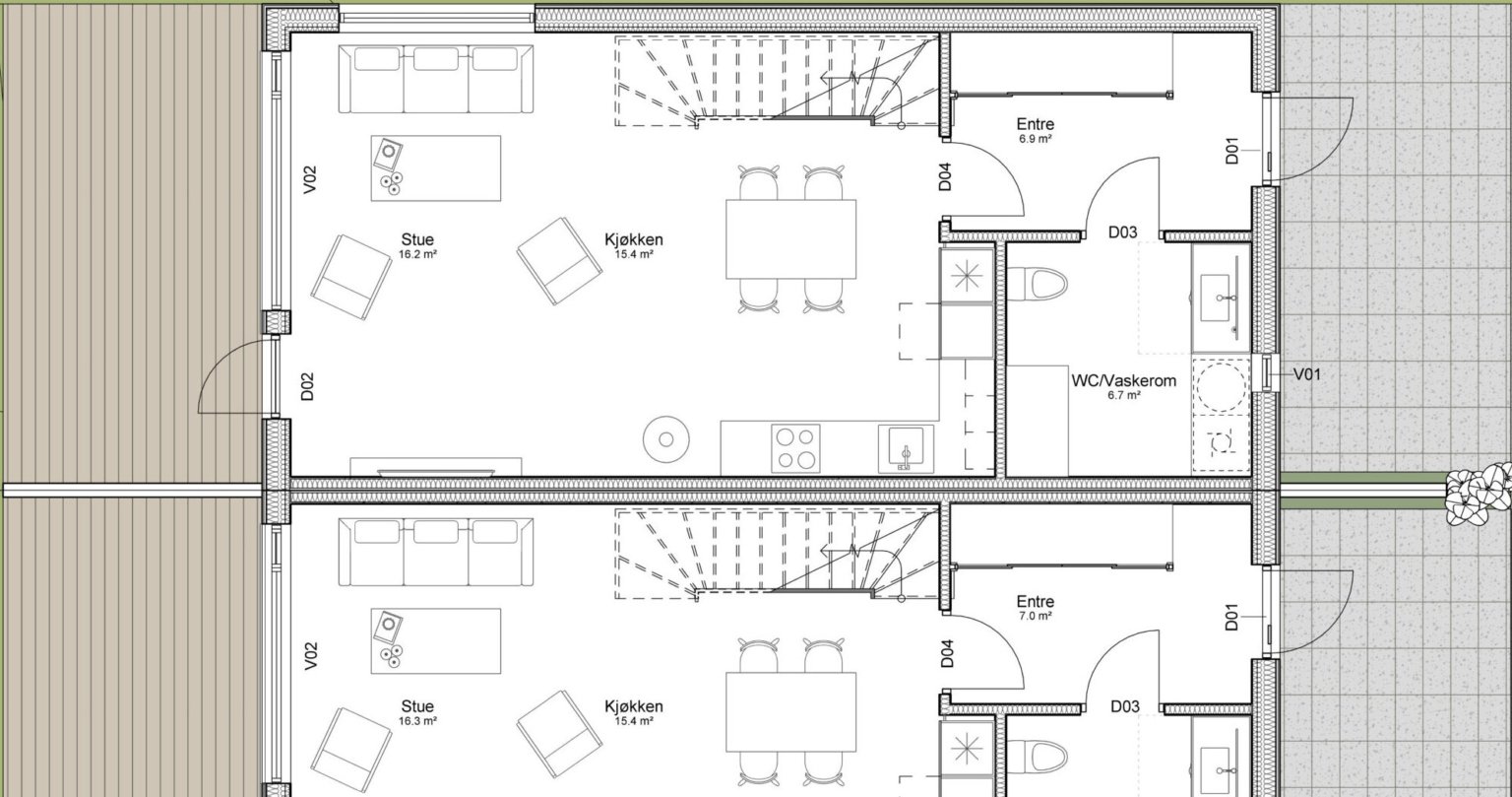
Jomfru Møllers vei 12 at Pepperstad in the municipality of Vestby. The construction work for the 10 terraced houses started up in Q3 2024 and is due to be finished in Q2 2025.

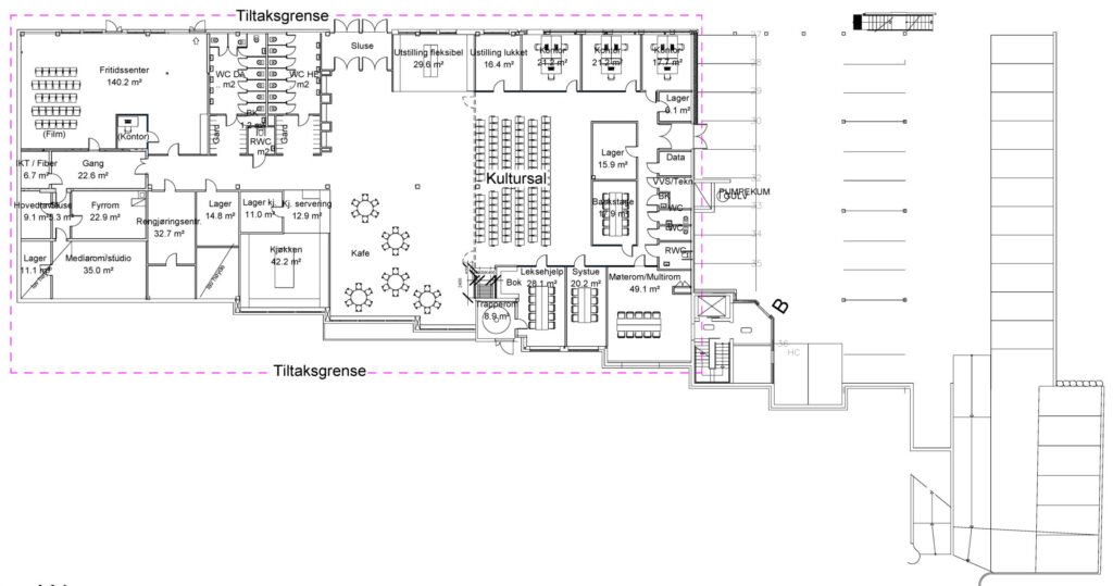
Ryenstubben 2 in Oslo. The building was converted from an assembly hall to a grocery store at the 1. level and to a community center for the Roma society in Norway in the basement.

The illustrations left and right show the grocery store at the 1. level and the community center in the basement respectively.

The illustrations below show typical construction drawings for a building site in Ukraine. Aside from the language they would probably look pretty much the same for a building site in Norway.